ID CP2864739

Apartament 3 camere 2 bai+pivniță Parter înalt|Terezian

ID CP2864739

122,000 €

Apartament cu 3 camere de vânzare
Terezian, Sibiu
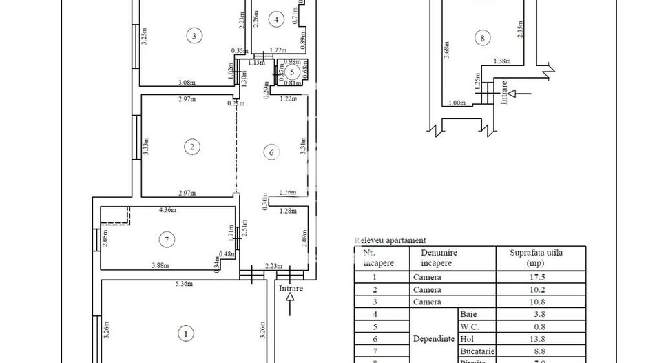
66 mp
1975

🏡 Apartament de vânzare – bucură‑te de confort cartierului Terezian!

Recent Terezianul este una dintre cele mai apreciate zone ale Sibiului – liniștită, verde, cu acces rapid la tot ce ai nevoie în viața de zi cu zi. 🌳✨

📍 Adresă: Sibiu, str. Rusciorului parter înalt

💶 Preț: 122.000 € (negociabil)

📐 Suprafață utilă: 66 mp + pivniță 8 mp

🌟 De ce acest apartament este special

✔ Situat în cartierul Terezian, cunoscut pentru atmosfera sa prietenoasă, parcurile generoase și accesul excelent la transport, școli și magazine.

✔ Parcul Terezian la doar 110 m – perfect pentru plimbări, relaxare și timp petrecut în natură.

✔ Supermarketuri la câțiva pași: Lidl (130 m), Profi (150 m), Selgros (800 m), Piața Obor (600 m) – tot ce ai nevoie, aproape de casă.

✔ Transport public la 200 m, ideal pentru deplasări rapide în oraș.

✔ Școli și grădinițe în proximitate – un avantaj major pentru familii.

🏠 Detalii despre apartament

3 camere luminoase

Baie

WC de serviciu

Bucătărie spațioasă

Pivniță proprie

Parter înalt într‑un bloc termoizolat, construit în 1975

Mobilat complet, gata de mutat

Nu necesită renovări – doar îți aduci lucrurile și te bucuri de noul tău cămin! 🎉

Dacă îți dorești un apartament într‑un cartier cu adevărat valoros, unde confortul și accesibilitatea se îmbină perfect, acesta este locul potrivit pentru tine. 🗝️✨

🏠 REY Imobiliare – Are o Casă pentru Fiecare.

Înainte să programezi o vizionare, verifică și celelalte oferte REY Imobiliare.

**La noi ai mereu COMISION ZERO la cumpărare!**

Citește mai mult

  • Tip apartament
    Apartament
  • Compartimentare
    Decomandat
  • Număr camere
    3
  • Număr băi
    2
  • Etaj
    Parter
  • Suprafață utilă
    66 mp
  • Disponibilitate
    Imediat
  • Stare interior
    Bună
  • Anul finisării
    2016
  • Imobil
    Bloc de apart.
  • Stadiu construcție
    Finalizată
  • An construcție
    1975
  • Număr etaje clădire
    4
  • Are pod
    Da

Facilități

Ferestre PVC
Izolație exterioară
Străzi asfaltate
REY Imobiliare

0735141157


Solicită chiar acum o vizionare
Telefon
Sună acum Solicită vizionare
Necesare:

Site-ul nu poate funcționa corect fără aceste cookie-uri. Vezi cookie-urile

Statistică:

Strângem statistici anonime despre voi, vizitatorii unici, pentru a vă îmbunătăți experiența dumneavoastră. Vezi cookie-urile

Marketing:

Pentru a ne promova mai eficient serviciile noastre, folosim cookies pentru a vă identifica și a vă oferi proprietăți și servicii personalizate. Vezi cookie-urile

Acest site folosește cookies, află detalii. Alege ce tipuri de cookies dorești să permitem: